Vierhausstraße; Bochum

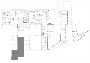
Aufgrund eines Brandereignisses, im Jahr 2018, mit hohem wirtschaftlichen Schaden, haben sich die ehemaligen Nutzer des Gebäudes, die Hans Hahn GmBh, entschieden den Betrieb aufzugeben. Es folgte eine Kernsanierung und Umnutzung der beiden vorhandenen Produktions- & Lagerhallen und der Activ Campus wurde geschaffen.
Vorher Nachher Activ Campus GMBH
Vorher Nachher
Dieser vereint Bewegung, Gesundheit, Sport & Fitness, Fort-& Weiterbung und Business und beherbergt Büro-& Geschäftsräume, Seminarflächen, eine Physiotherapie-, eine Arztpraxis, sowie ein Yogastudio. Bei den Sanierungsarbeiten wurde zudem auf einen klimafreundlichen und energetischen Ausbau geachtet.
Activ Campus GMBH
Activ Campus GMBH

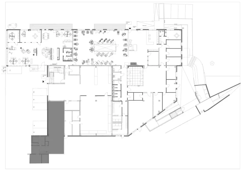
Vierhausstraße; Bochum

Aufgrund eines Brandereignisses, im Jahr 2018, mit hohem wirtschaftlichen Schaden, haben sich die ehemaligen Nutzer des Gebäudes, die Hans Hahn GmBh, entschieden den Betrieb aufzugeben. Es folgte eine Kernsanierung und Umnutzung der beiden vorhandenen Produktions- & Lagerhallen und der Activ Campus wurde geschaffen. Dieser vereint Bewegung, Gesundheit, Sport & Fitness, Fort-& Weiterbildung und Business und beherbergt Büro-& Geschäftsräume, Seminarflächen, eine Physiotherapie-, eine Arztpraxis, sowie ein Yogastudio. Bei den Sanierungsarbeiten wurde zudem auf einen klimafreundlichen und energetischen Ausbau geachtet.
Vorher Vorher