Neheimer Straße; Werl
Mit dem Neubau wurde ein modernes, lichtdurchflutetes Bürogebäude geschaffen. Die
hauptsächlich verwendetetn Materialien, wie Glas, Stahl & Beton, schaffen eine ruhige
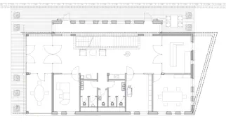
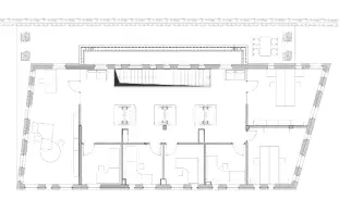
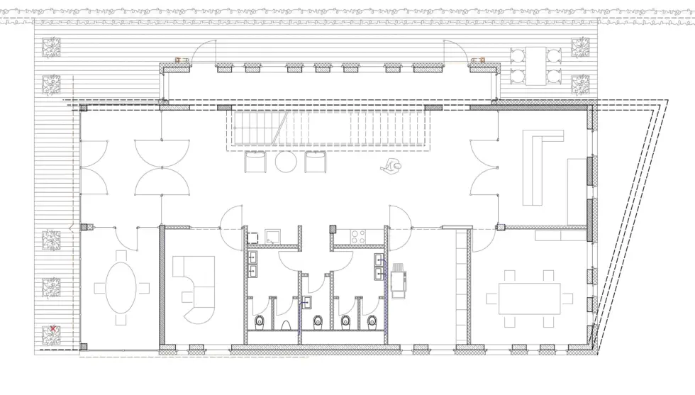
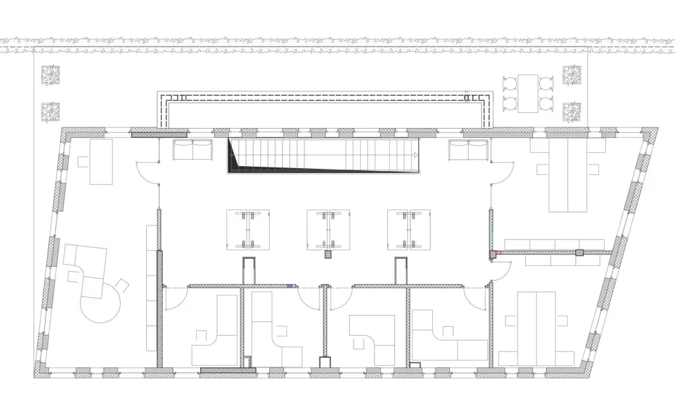
und klare Struktur für die Büroräume. Der längliche, trapezförmige Grundriss, des
zweigeschossigen Baukörper in Massivbauweise sieht 2 Auskragungen im Obergeschoss
vor. Im Osten wird das Erdgeschoss durch einen Wintergarten erweitert, welcher Zugang
zur Terrasse ermöglicht. Diese zieht sich seitlich um das Gebäude herum und bildet
somit das Eingangspodest des Hauptzugangs. Herzstück des Objektes ist der großzügige
& sehr offen gestaltete Eingangsbereich, welcher auch als Kommunikationszone dient,
und das Erdgeschoss mit dem 1.OG über die geradlinige Treppe verbindet.